
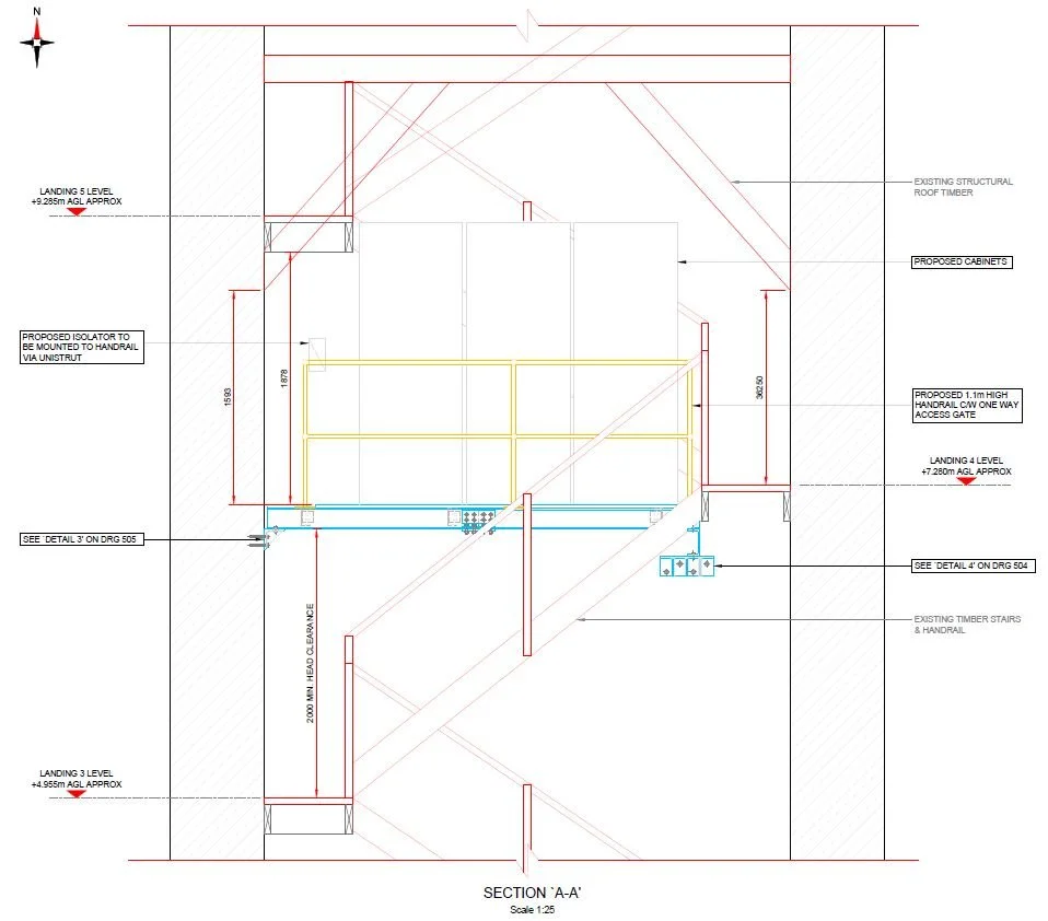
This section contains several examples of my 2D drafting skills. I plan to upload some more examples here, although I can’t show very recent work due to respecting client copyright concerns. However, I think the below examples show a typical selection of the types of 2D CAD/ Design work I regularly do.




